文章来源:询匠
导言:

图纸中桩说明如下:

1. 桩基本信息

注:1.关注表格内桩直径、桩长以及配筋,结合详图
2. 成孔方式:泥浆护壁成孔
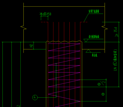
3. 详图



South Africa red wine
4. 根据图纸和施工工艺分析需要计算的项有以下几个方面:
第一步:
了解施工工艺,从中摘取要计算的工程量

第二步
了解定额中关于灌注桩的计算规则
Q1
定额规则
1.沉管灌注混凝土桩、夯扩桩工程量,按桩长乘以设计截面面积以“m3”计算。
5.钻、冲孔桩工程量,按桩长乘以设计截面面积以“m3”计算。
6.旋挖桩工程量,按桩长乘以设计截面面积以“m3”计算。
8.钻孔(旋挖)桩和冲孔桩的灌注混凝土工程量,预算按设计图示桩长乘以设计截面面积以“m3”计算,结算按实调整。
计算灌注桩及钻孔工程量
Q2
定额规则
2.灌注桩检测管工程量,按钢检测管质量以“t”计算,塑料管按长度以“m”计算。桩底(侧)后压浆工程量按设计注入水泥用量以“t”计算。如水泥用量差别大,允许换算。
计算钢管检测工程量
Q3
3.钢护筒工程量,按钢护筒加工后的成品质量以“t”计算。
计算钢护筒工程量
Q4
定额规则
7.钻孔桩、冲孔桩和旋挖桩入岩增加费,按入岩厚度乘以设计截面面积以“m3”计算。
计算入岩增加费部分工程量
Q5
定额规则
四、泥浆运输工程量,按钻、冲孔桩工程量以“m3”计算。
计算泥浆运输工程量
Q6
定额规则
五、截(凿)桩头
1.桩头钢筋截断工程量,按设计图示数量以“根”计算。
2.机械切割预制桩头工程量,按设计图示数量以“个”计算。凿桩头工程量,除另有规定外,按设计要求以“m3”计算。设计没有要求的,预算时其长度从桩头顶面标高计至桩承台底以上100mm,结算时按实调整。凿灌注桩、钻(冲)孔桩的工程量,按凿桩头长度乘桩设计截面面积再乘以系数1.20计算。
计算截凿桩头及钢筋梳理费用工程量


第三步:
结合图纸及计算规则计算桩基部分可计量工量(以桩表中ZH1为例)



第四步:
考虑定额里没有明确给出计量规则,实际会产生的部分工程量
询匠服务热线
土建项目经理:17310453262
安装项目经理:15321087807
发项目链接

以上内容来源于网络收集整理,如有侵权请联系客服