悬挑式脚手架是建筑工程施工中的简易设施,分为每层一挑,多层悬挑两种。工程工作中存在条件差、施工误差大等问题,造成了悬挑式脚手架的做法不规范,工程质量严重下降。比如:
1. 悬挑梁受力后竖向存在微小位移,悬挑梁水平方向位移难以控制,两根钢筋单面水平焊缝现场施工质量不好控制。

2. 木楔块受力后会变形,加焊的横杆和门型钢架,强度差。

后来经过不断的摸索,制定了一种好的链接方式,端部采用双道固定,木楔换成铁楔,而且双向打楔。



一、型钢悬挑梁的具体规范
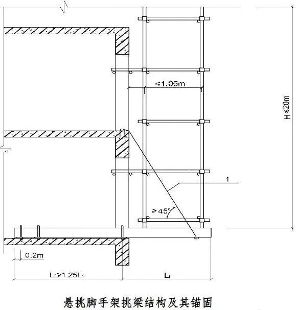
1. 高度不应小于160mm双轴对称截面的型钢(工字钢)做悬挑梁结构。
2. 悬挑梁端部设置定位点,定位点离悬挑梁端部不应小于100mm 。
3. 定位点可采用长0.2m,直径25-30mm的钢筋或短管。
4. 固定端长度大于悬挑端1.25倍,悬挑梁间距应按悬挑架架体立杆纵距设置,每一纵距设置一根。(不允许有连梁)



二、挑梁结构及其锚固的验算内容
1. 悬挑梁的强度
2. 悬挑梁的挠度
3. 当无有效支撑体系时悬挑梁的稳定
4. 悬挑梁锚固段压点处U型钢筋拉环或螺栓的强度
5. 压点处楼板承受锚固负弯矩时的抗弯强度
6. 悬挑梁前端支点下混凝土梁(板)的承载力
三、U形钢筋拉环(或锚固螺栓)
U型钢筋拉环或螺栓应采用冷弯成型。U型钢筋拉环、锚固螺栓与型钢间隙应用钢楔或硬木楔楔紧。
悬挑梁尾端应在两处及以上固定于钢筋混凝土梁板结构上。锚固型钢悬挑梁的U型钢筋拉环或锚固螺栓直径不宜小于16mm。

当型钢悬挑梁与建筑结构采用螺栓钢压板连接固定时,钢压板尺寸不应小于100mm×10mm(宽×厚);当采用螺栓角钢压板连接时,角钢的规格不应小于63mm×63mm×6mm。
四、建筑主体结构
(1) 主体结构强度不低于C20。
(2) 悬挑钢梁支撑点应设置在结构梁上,不得设置在外伸阳台或悬挑板上,否则加固措施点这免费下载施工技术资料。
五、钢丝绳(或钢拉杆或钢拉杆),吊环
悬挑钢梁前端应采用吊拉卸荷,应满足以下要求:
(1) 钢丝绳不小于φ14mm,吊环不宜小于φ20mm,预埋吊环应使用HPB235级钢筋制作。
(2) 钢丝绳绳卡不少于3个。受力绳应位于卡扣座处,绳扣间距为150-200,末端钢丝绳长度不得少于200mm。
(3) 钢丝绳与型钢梁夹角大于45度。

六、悬挑阳台位置,工字钢的设计工字钢的设计
挑钢梁支承点应设置在结构梁上,不得设置在外伸阳台上或悬挑板上,故该处利用垫木垫起。如果必须设置阳台时,要求该处的支撑体系不得拆除,并进行承载力计算。

七、外防护脚手架安全防护
1. 立面防护

2. 剪刀撑和横向斜撑

3. 水平防护((装修施工阶段)

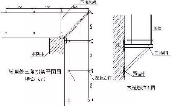
4. 转角处挑梁的设计

八、特殊结构处理
1. 在建筑结构角部,钢梁宜扇形布置


如果结构角部钢筋较多不能留洞,可采用设置预埋件焊接型钢三脚架等措施。
九、工字钢悬挑脚手架最新规范
工字钢悬挑脚手架最新规范在工程中可以有效的帮助我们解决问题,几大要点如下:
1. 一次悬挑脚手架高度不宜超过20m。
2. 型钢悬挑梁宜采用双轴对称截面的型钢。如工字钢,工字钢结构性能可靠,双轴对称截面,受力稳 定性好 ,较其他型钢选购、设计、施工方便。
3. 悬挑钢梁型号及锚固件应按设计确定,钢梁截面高度不应小于160mm。悬挑梁尾端应在两处及以上固定于钢筋混凝土梁板结构上。锚固型钢悬挑梁的U型钢筋拉环或锚固螺栓直径不宜小于16㎜。
工字钢悬挑脚手架的检查与验收
1. 脚手架搭设完毕或分段搭设完毕,应按规定对脚手架工程的质量进行检查,经检查合格后方可交付使用。
2. 高度在20m及20m以下的脚手架,应由单位工程负责人组织技术安全人员进行检查验收。高度大于20m的脚手架,应由上一级技术负责人随工程进行分阶段组织单位工程负责人及有关的技术人员进行检查验收。
3. 验收时应具备出厂合格、质量分类合格、施工记录、施工报告等文件。
4. 进行现场检查,检查的各项,记入施工验收报告。
以上内容来源于网络收集整理,如有侵权请联系客服