文章来源:询匠
随着管装配式建筑越来越普遍,造价的装配式业务越来越多,算客工场询匠团队近期项目中,有将近30%项目均为装配式,其中预制墙、叠合板应用率较高,本文根据以往的装配式项目经验,从算量维度总结叠合板的识图与建模技巧。
预制叠合楼板是由预制板和现浇层叠合而成的装配整体式楼板。如图所示,预制板厚度为h1,现浇层厚度为h2,叠合板整个厚度为h。叠合板底筋、桁架筋均在预制板中预制,叠合板现浇层里的钢筋在现场绑扎。

看懂叠合板,需要找三张图,即“板平面布置图”、“水平向预制构件平面布置图”及PC构件深化图(装配式构件详图)(各项目图纸名称会有差别),并从“结构平面图”中获取整个叠合板的厚度、钢筋等信息;从“水平向预制构件平面布置图”中获取预制板的位置及每个预制板块的名称、板缝宽度等信息;在“PC构件深化图---预制板图”中获取预制板的钢筋等信息。我们通过两个装配式项目进行分析。
案例1:某高层住宅
一看结构平面图。从结构平面图中的说明可以获取到黄圈中特殊标记的板为PC叠合板,整个板厚为130mm,配筋为C8@150双层双向拉通配置。PC叠合板的钢筋是怎样的,还要进一步分析预制板深化图。



二看预制构件平面布置图。看预制板分布的位置及每块预制板的名称。如PCYB-01L,并在文字说明中找到预制板的厚度及现浇层的厚度。如图所示,预制板厚度为60,现浇层厚度为70,与结构平面图中的说明PC叠合板厚度为130mm相吻合。

三看预制板深化图。找到对应名称的预制板详图,看配筋图及配筋表、看三维图中预制板边的构造形式,本项目预制板为矩形边。通过配筋图、三维示意图、配筋表可以看出,预制板中已经包含了双向C8的底筋,故结构平面图中板的说明“PC叠合板130厚配C8@150双层双向钢筋”中,叠合板现浇层只有双向通长面筋。


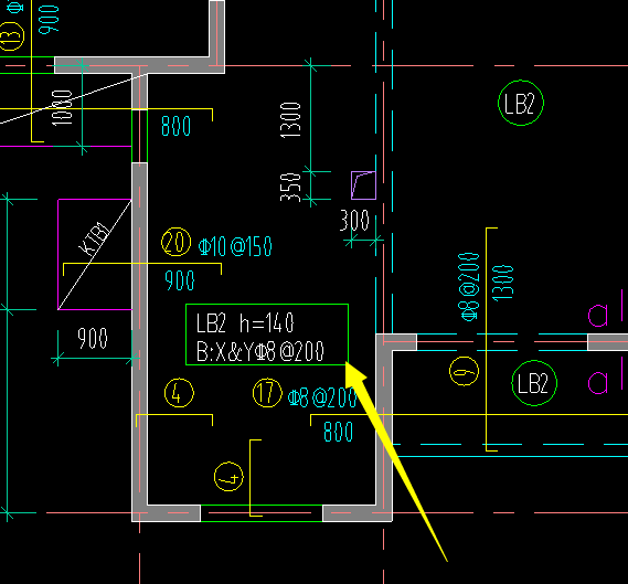
案例二:某安置房项目
一看板平面布置图。从板平面图中可以看出LB2厚度为140mm,配双向C8@200的底筋,面筋为支座负筋。
二看水平向构件平面布置图。看同位置是否有预制板,如有预制板看其编号。本项目中同位置有预制板,厚度为60mm,现浇层厚度为80mm,叠合板总厚140mm,与板平面布置图相吻合。

三看预制板深化图。找到对应编号的预制构件加工图,看剖面图中预制板边构造形式,本项目为三角边,看配筋图中的钢筋编号及钢筋明细表中的对应配筋信息,本项目中预制板两个方向的配筋均为C8,故板平面布置中的双向底筋C8@200即为预制板中的钢筋,而现浇层中只有支座负筋。


相邻预制板块之间可能是密拼(如图一所示),也可能是带一定宽度的拼缝(如图二所示),各项目的具体要求需要看“预制构件结构设计总说明”或单独的预制构件节点详图。 

预制板间的板缝为现浇,板缝钢筋为现场绑扎。上图二中板缝宽≥200(具体宽度看“水平向预制构件平面布置图”),无板缝钢筋(板缝处粉色钢筋为预制板出筋)。而图三中板缝钢筋为箭头所指的三根钢筋,配筋同同向预制板筋。

分析完叠合板图纸,了解了您项目中叠合板现浇层钢筋、预制板形式、板缝等信息,下一步要进行叠合板建模了。预制板建模可以手工绘制,也可以识别,利用“水平向构件平面布置图”来识别。首先,将图纸加载到软件中,在“叠合板(预制底板)”构件中进行“识别预制底板”;

最后,确认预制底板的厚度、边沿构造样式等信息,点击“识别”即可完成识别预制板的整个流程,紫色板块为识别到的预制板。

现浇层目前不支持识别,利用“叠合板(整层)”构件,对照板结构平面布置图手工绘制在相应的位置即可。



前面提到,板缝分为密接拼缝和带宽度的后浇接缝,我们只需要画带宽度的后浇接缝即可。
1)新建板缝,选择适合您项目的板缝参数图。本案例中使用后浇接缝-1的形式,缝宽定为300。顺缝板底纵筋根数为3根,级别及直径同当前预制板同向底筋,按水平构件平面布置图中板缝的位置绘制板缝。

自动生成板缝,在下图的表格中输入板缝宽度(图纸中有几种宽度输入几行数据),选择板缝参数并输入相应信息,确定即可生成板缝。


最后我们来说说现浇层钢筋如何绘制。回顾前面说过的案例二,某安置房项目,看板结构平面图中的配筋信息。本项目通长底筋在预制板中,只需要绘制现浇层的负筋即可。可以利用“叠合板负筋构件绘制”。如果图纸中LB2标注为C8@200双层双向布置,则还需要布置现浇层的通长面筋,用“叠合板受力筋布置”即可,布置方式同现浇板钢筋的布置方式。

这么多关于叠合板的内容,您学会了吗?

询匠服务热线
土建项目经理:17310453262
安装项目经理:15321087807
发项目链接
www.jiang580.com/wx/pages/wt
以上内容来源于网络收集整理,如有侵权请联系客服