文章来源:筑龙施工
来源:厦门市建设局
版权归原作者所有
1管理要求
1、本图集脚手架工程指落地式钢管脚手架和型钢悬挑式钢管脚手架两大类,分别由架体基础、架体构造、架体防护和斜道等部分组成。脚手架工程搭拆应执行现行《危险性较大的分部分项工程安全管理规定》住房和建设部第37号令、《建筑施工脚手架安全技术统一标准》(GB 51210-2016)、《建筑施工扣件式钢管脚手架安全技术规范》(JGJ 130-2011)、《关于实施<危险性较大的分部分项工程安全管理规定>有关问题的通知》建办质[2018]31号文、《关于加强建筑施工主要重大危险源安全管控的通知》(闽建建[2017]30号文)等规范、标准规定。
2、脚手架施工前应编制专项施工方案,架体应有设计计算书以及主要节点构造详图、架体平面图、剖面图等,并经施工企业技术负责人、总监理工程师审核审批,安拆过程中专职安全管理人员必须在场。高度50 m及以上的落地式钢管脚手架和高度20 m及以上型钢悬挑钢管脚手架专项施工方案应通过专家论证后,方可实施。
3、 脚手架搭设人员必须持有住房和城乡建设部发放的建筑架子工操作证,且在有效期内。
4、 基础是脚手架稳定性的重要组成部分。在基础地耐力和沉降不满足规范要求时,严禁搭设落地式钢管脚手架,可优先考虑采用悬挑钢管脚手架。
5、脚手架外侧应满挂阻燃性能符合要求的密目式安全网。
6、脚手架使用的杆件、扣件等材质的规格应符合规范要求和消防要求,严禁用两种不同直径的钢管混搭。
7、扣件螺栓拧紧扭力矩不应小于40 N·m,且不应大于65 N·m。
8、脚手架使用前应组织验收,验收合格后方可投入使用,使用中应加强日常的检查维护工作,确保架体使用安全。
9、夜间、遇六级(含六级)以上大风及雷雨等天气,不得进行脚手架搭设、拆除作业。
2脚手架的细部加强构造
1、洞口连墙对拉构造


洞口拉结细部做法:
架体小横杆延长作为连墙杆,a为800 mm或1050 mm(悬挑式脚手架为800 mm,落地式脚手架为1050 mm),连墙杆外露洞口≥100 mm。在连墙杆上,内外墙各附加一根钢管,用扣件连接,小横杆两端分别外露洞口各≥100 mm。进入装修阶段,墙体需加设成品保护
2、连墙件抱柱构造


柱子拉结细部做法:
在个别位置无法两步三跨设置连墙件时,采用抱柱补强措施。在架体上附加一根连墙杆,延伸至柱子一侧,在柱子另外三个侧面附加三根小横杆,用扣件与连墙杆连接,形成环抱。钢管外露长度≥100 mm
3、抛撑构造

说明:
1. 此构造用于建筑物柱距较大、层高≥5 m等,连墙件设置不能满足两步三跨要求的情况。
2. 搭设抛撑时,抛撑采用通长杆并采用旋转扣件固定在脚手架上,与地面的倾斜度为45°~60°。
3. 普通脚手架开始搭设立杆时,也应每隔六跨设置一根抛撑,直至连墙杆安装稳定后,方可根据情况进行拆除。
4、层高过高、柱距过大时连墙件构造


格构柱细部做法:
当层高过高、柱距过大时可增设格构柱,格构柱截面尺寸宜为460 mm×460 mm,钢格构为4根150 mm×150mm×12 mm角钢及缀板焊接而成,每隔两步三跨设置一根钢管作为连墙件。主体混凝土浇筑时,应设置格构件预埋件
5、外架内防护构造


外架填芯杆细部做法:
架体与建筑物的间隙应小于150 mm,间隙超大时,可充分利用靠墙一端的横向水平杆合理外伸(不应大于架体宽度的40%,大于400 mm时应增设填芯杆),每层应采取铺设钢笆片、挂设安全兜网等防护措施,使架体与建筑物的间隙满足要求。
1. 钢笆片:架体与建筑物的间隙大于400 mm时则需要使用钢笆片措施。
2. 安全兜网:架体与建筑物的间隙为150~400 mm时则需要使用安全兜网措施。
6、剪力墙处连墙件构造(方法一)


墙体拉结细部做法:
在剪力墙上预埋Ф 60 mm PVC管,a为800 mm或1050 mm (悬挑式脚手架为800 mm,落地式脚手架为1050 mm),通过预埋管拉通一根连墙杆与架体连接。
在连墙杆上,内外墙各附加一根钢管,用扣件连接。小横杆外露长度≥100 mm。
7、剪力墙处连墙件构造(方法二)




说明:
1. 外架连墙件分为两种:预埋式和穿墙式。
2. 混凝土浇筑前将预埋件埋入剪力墙或梁内(或设置穿墙螺栓孔),刚性连接件焊接螺母的一端套入预埋件(或穿墙螺栓),另一端通过扣件与脚手架立杆固定
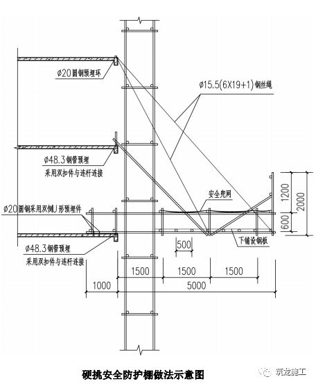
8、外架水平防护构造(软挑、硬挑)


说明:
1. 搭设软挑时,软挑采用通长杆并用旋转扣件与脚手架连接作为斜撑杆,斜撑杆与外架倾斜角度为45°~60°,每两跨设置一道斜撑杆,斜撑杆顶部设置两道防护与外架连接,上下分别是密目安全网和水平兜网。
2. 图中未标注的钢管规格均为Ф 48.3 mm×3.6 mm ,硬防护棚与外架分别独立,不得通过任何杆件进行连接。悬挑钢管每1.5 m设一根,悬挑长度约5m (可根据工程实际情况并经计算调整),内侧端部用倒U形预埋件固定于水平面。
3. 硬挑安全防护底层钢管横铺在悬挑钢管上,间距500 mm。底层钢管上铺满钢笆片和安全网形成防砸棚的底面,每4.5 m设置一道刚性连接,端部与预埋在梁内的钢管采用扣件连接,每4.5 m设置一道柔性连接,端部与预埋在梁内的锚环拉结。
4. 设置软挑安全防护棚时,若遇台风天气,应收回并拆除安全网。设置硬挑安全防护棚,应因地制宜,综合考虑防护需要及防台风措施。软挑安全防护棚做法示意图硬挑安全防护棚做法示意。
3落地式脚手架底部构造



落地脚手架底部做法:
1. 落地式脚手架基础为回填土时,可采取两种做法,分别为12号槽钢底座和3000 mm×200 mm×50 mm木垫板底座。
2. 落地式脚手架设置在地下室顶板上时,可使用150 mm×150 mm×6 mm钢板底座 (详见钢板底座图示)
4悬挑式脚手架
1、悬挑式脚手架“四新”构造

方便检查钢丝绳是否松动,当末端钢丝绳弧度有减小时,说明该钢丝绳绳卡松动,需对卡扣重新排查并拧紧。

在型钢腹板焊接拉钩,钢丝绳直接拉在拉钩上,钢丝绳在受力时不易滑动,不易磨损,提高安全性能。

钢丝绳与拉环之间设置“鸡心环”,具有良好的耐磨性能,可减少钢丝绳与拉环之间的磨损,提高安全性能。

在型钢上增设可移动立杆套件,便于安装和调节立杆间距,避免定位筋在钢梁焊接时损伤型钢。
2、悬挑式脚手架转角处三角支撑架构造




3、悬挑式脚手架底部封闭构造



共同努力,在信息繁杂的时代,时刻保持高效成长
以上内容来源于网络收集整理,如有侵权请联系客服
