建筑物或构筑物地下部分施工时,需开挖基坑,进行施工降水,同时要对基坑四周的建筑物、构筑物、道路和地下管线进行围护及监测,确保正常、安全施工。这项涉及勘查、设计、施工、监理、监测、应急等内容的综合系统性工程称为基坑工程。
基坑工程中采用的围护墙、支撑(或土层锚杆)、围檩、防渗帷幕、降排水等结构体系的总称。
开挖深度超过5M(含5M)或深度虽未超过5M,但地质条件和周围环境及地下管线极其复杂的工程。
(3)在基坑开挖影响范围内有重要建(构)筑物或需严加保护的管线。
利用土体自身的强度保持边坡不发生坍滑、移动、松散或不均匀下沉,达到边坡稳定。
关键是坡度i = H / L ,一般取1 : 0.5 — 1 : 2.0

一般适用于杂填土、粘性土或粉性土,且环境条件允许的基坑。由被加固土体、设置于土中的土钉体和挂钢筋网的喷射砼面板等共同作用形成的补强复合土体。





注意:土钉墙在软粘土中(塘泥、淤泥、淤泥质粘土、淤泥质粉质粘土等)要严格控制,特别是周围环境要求较严的基坑。
土方开挖前施打水泥搅拌桩、振动灌注桩、钢板桩、木桩等,然后按土钉墙的施工方法进行施工。


排桩复合土钉
水泥搅拌桩(旋喷桩)采用格栅形或连续形布置形成重力坝墙。




适用于场地较开阔、坑深不大于7M 、轮廓较大、软弱地层的基坑。
注意:对于有机质含量较高的土层,应通过试验确定其适应性。(1)截面置换率通常为0.6—0.8,且纵向墙肋间净距不宜大于1.3M;横向墙肋间净距不宜大于1.8M,搭接≥150MM。
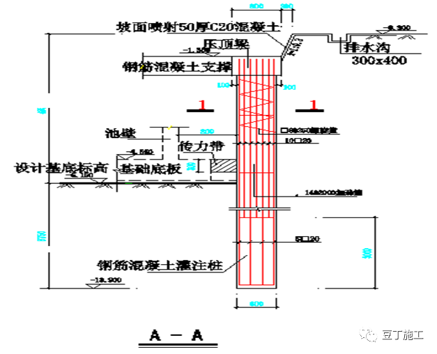
围护墙:排桩式(钻孔灌注桩、沉管灌注桩、人工挖孔桩、板桩、钻孔咬合桩、SMW工法等);


围护墙为排桩式(钻孔灌注桩)


围护墙为排桩式(素砼桩)



围护墙为排桩式(钻孔咬合桩)

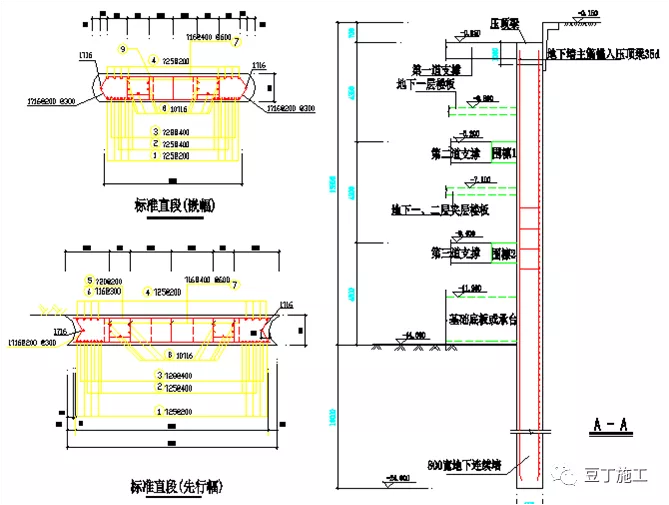
围护墙为墙式(地下连续墙)

围护墙为墙式(地下连续墙)


地下连续墙
(1)内支撑:钢筋砼支撑﹙永久钢筋砼结构支撑、临时钢筋砼支撑﹚、钢支撑、钢与钢筋砼组合支撑。
内支撑形式:对撑

临时钢筋砼支撑形式:桁架式对撑 角撑

桁架式对撑

临时钢筋砼支撑形式:内环式支撑



形式:钢绞线、高强钢丝或高强螺纹钢筋,并宜施加预应力。适应范围:粘性土、粉性土及砂土层,不宜用于淤泥及淤泥质土层中。


